Apartamento / piso. Obra nueva San Pedro del Pinatar. Costa Calida

Ref. ONPRO36-SPP
235900€

Apartamento / piso. Obra nueva San Pedro del Pinatar. Costa Calida

Características

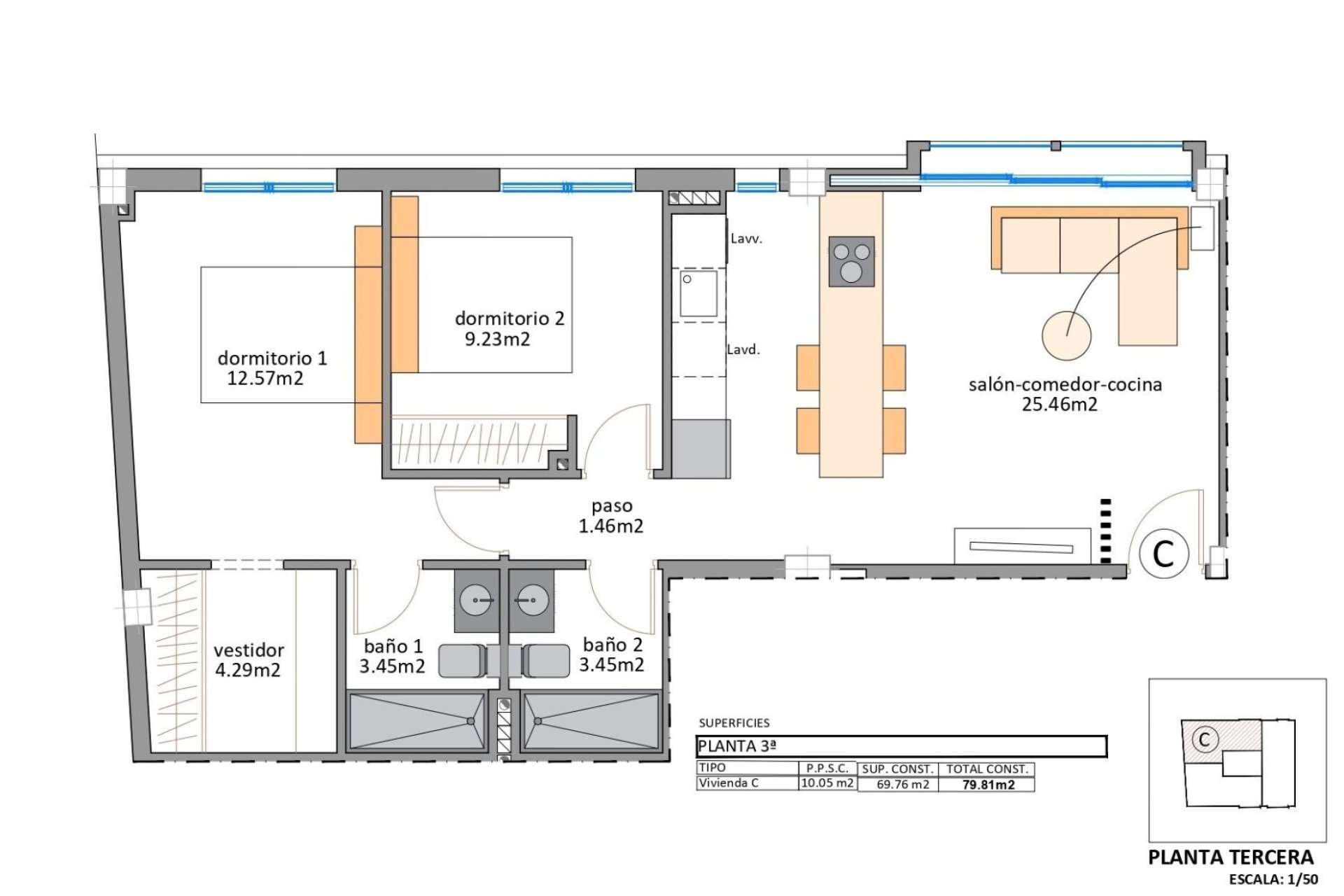
Levante Homes Habitaciones 2
Levante Homes Baños 2
Levante Homes Construidos 75m2
Levante Homes EstadoNuevo

Descripción

    Ref.:ONPRO36-SPP

Planos

Hacer una consulta

Responsable del tratamiento: Levante Homes, Finalidad del tratamiento: Gestión y control de los servicios ofrecidos a través de la página Web de Servicios inmobiliarios, Envío de información a traves de newsletter y otros, Legitimación: Por consentimiento, Destinatarios: No se cederan los datos, salvo para elaborar contabilidad, Derechos de las personas interesadas: Acceder, rectificar y suprimir los datos, solicitar la portabilidad de los mismos, oponerse altratamiento y solicitar la limitación de éste, Procedencia de los datos: El Propio interesado, Información Adicional: Puede consultarse la información adicional y detallada sobre protección de datos Aquí.
WhatsApp